SHA.19

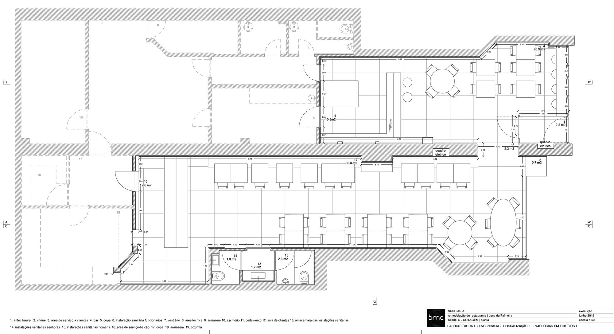
SUSHIARIA

Restauração – Leça da Palmeira – 2019

Projeto – Arq. Hugo Camelo

Gestão do projeto – Plano Livre