ODS.20

OSCAR DA SILVA

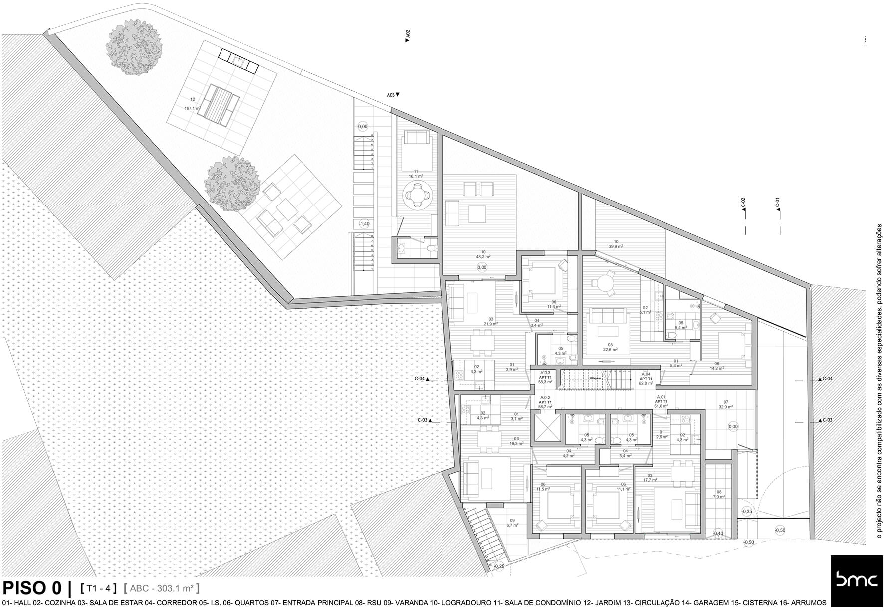
Habitação Multifamiliar – Leça da Palmeira – 2020

Projeto – Arq. Hugo Camelo

Promotor – Plano Livre